평면정보
- 전용면적 63.8043㎡
- 주거공용면적 20.2371㎡
- 소계(전용+공용) 84.0414㎡
- 기타공용면적 50.8107㎡
- 계약면적 134.8521㎡
UNIQUE SPACE
다른 감각과 디테일로 완성한 공간에서 특별한 일상이 시작됩니다
- 전용면적 74.9086㎡
- 주거공용면적 23.5252㎡
- 소계(전용+공용) 98.4338㎡
- 기타공용면적 59.6537㎡
- 계약면적 158.0875㎡
COMFORT SPACE
편안함을 최우선으로 설계한 공간에서 하루의 피로가 자연스레 회복됩니다
- 전용면적 84.5227㎡
- 주거공용면적 25.2499㎡
- 소계(전용+공용) 109.7726㎡
- 기타공용면적 67.3099㎡
- 계약면적 177.0825㎡
SERENE SPACE
고요와 여유가 흐르는 공간에서 마음까지 편안해집니다
- 전용면적 84.8855㎡
- 주거공용면적 26.3088㎡
- 소계(전용+공용) 111.1943㎡
- 기타공용면적 67.5988㎡
- 계약면적 178.7931㎡
HARMONY SPACE
사람과 공간, 자연이 조화를 이룬 곳에서 삶의 균형이 완성됩니다
- 전용면적 84.9890㎡
- 주거공용면적 27.3364㎡
- 소계(전용+공용) 112.3254㎡
- 기타공용면적 67.6812㎡
- 계약면적 180.0066㎡
MODERN SPACE
세련된 라인과 간결한 디자인의 공간에서 도시적인 라이프스타일이 빛납니다
- 전용면적 99.3062㎡
- 주거공용면적 28.9971㎡
- 소계(전용+공용) 128.3033㎡
- 기타공용면적 79.0828㎡
- 계약면적 207.3861㎡
LUXURY SPACE
품격 있는 디테일과 고급 소재가 어우러진 공간에서 매일의 순간이 더욱 특별해집니다
- 전용면적 113.6508㎡
- 주거공용면적 34.1518㎡
- 소계(전용+공용) 147.8026㎡
- 기타공용면적 90.5063㎡
- 계약면적 238.3089㎡
CALM SPACE
절제된 색감과 부드러운 조명의 공간에서 집이 곧 쉼터가 됩니다
- 전용면적 152.5880㎡
- 주거공용면적 48.0786㎡
- 소계(전용+공용) 200.6666㎡
- 기타공용면적 121.5140㎡
- 계약면적 322.1806㎡
- 전용면적 171.7503㎡
- 주거공용면적 52.7299㎡
- 소계(전용+공용) 224.4802㎡
- 기타공용면적 136.7741㎡
- 계약면적 361.2543㎡
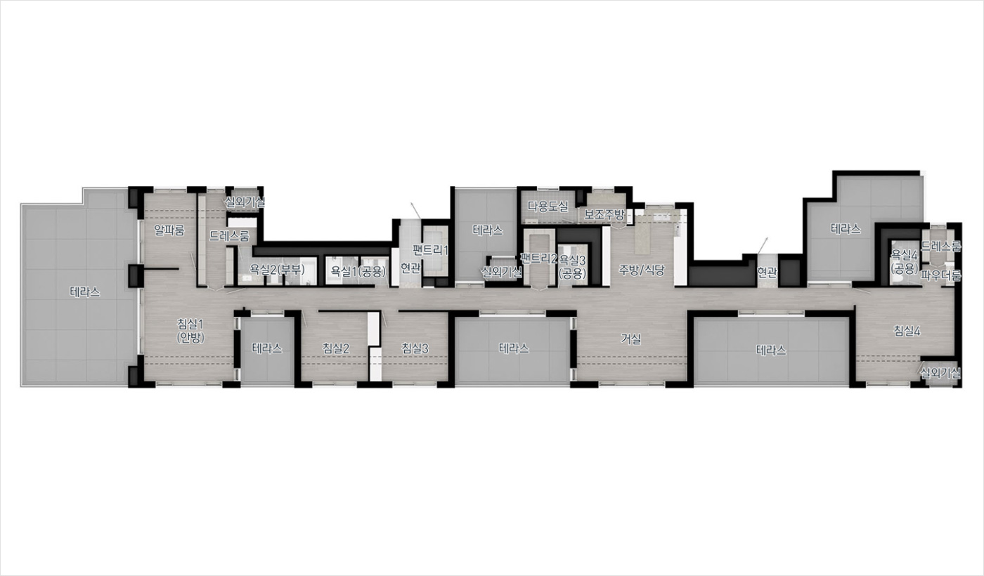
- 전용면적 192.7418㎡
- 주거공용면적 64.4324㎡
- 소계(전용+공용) 257.1742㎡
- 기타공용면적 153.4907㎡
- 계약면적 410.6649㎡
- 전용면적 197.1512㎡
- 주거공용면적 65.2923㎡
- 소계(전용+공용) 262.4435㎡
- 기타공용면적 157.0023㎡
- 계약면적 419.4458㎡
- 본 사이트 상의 아이소,평면도는 소비자의 이해를 돕기 위해 제작된 것으로 외곽 라인, 내부 레이아웃, 인테리어 마감, 내부 디테일, 가구 디자인 등 세부사항은 변경될 수 있으니, 자세한 사항은 견본주택에 문의하시어 계약 등에 착오 없으시기 바랍니다.
- 면적 수치는 제작 과정상 오탈자가 있을 수 있으므로 계약 시 반드시 확인하시기 바랍니다.
여유가 느껴지는 거실에서 일상이 따스하게 물듭니다
LIVING ROOM 113
LIVING ROOM 84A
LIVING ROOM 74
부드러운 색감의 침실에서 기다린 내일이 준비됩니다
BED ROOM 113
BED ROOM 84A
LIVING ROOM 84A
LIVING ROOM 74
모던한 분위기의 주방에서 활기찬 대화가 시작됩니다
DINING ROOM 113
DINING ROOM 74
DINING ROOM 84A
쾌적함으로 채운 욕실에서 하루의 피로를 씻어냅니다
BATH ROOM 113
BATH ROOM 84A
BATH ROOM 74